Willkommen im Wohnprojekt Schöneck
| Projekt-ID/Nr.: | HU-2128 |
| Projekt / Anzahl Einheiten |
6 Reihenhäuser |
| Grundstückslage | Frankfurter Straße 75 |
| 61137 Schöneck (OT Kilianstädten) | |
| Baubeginn | Sommer 2017 |
| Grundstücksgrößen | von 154 bis 348m² |
| Wohn-/Nutzflächen | bis 148 m² Wohn-/Nutzfläche |
| Kaufpreise |
ab 299.000 EURzzgl. Nebenkosten lt. Exposé |
Ab Sommer 2017 entstehen in Schöneck-Kilianstädten 6 moderne Reihenhäuser zu äußerst attraktiven Preisen. Die Häuser werden Ihnen schlüsselfertig zur Eigennutzung übergeben oder können bei Kauf zu Kapitalanlagezwecken auch gut vermietet werden. Die Ausführung erfolgt auf 6 einzelnen Grundstücksflächen, welche mit in Gruppen zu 2 x 3 Reihenhäusern bebaut werden.
Sie möchten mehr erfahren?
Hier nähere Infomationen anfordern!
---------------------------------------------------------------------------------------------------------------------------------------
Weitere Projekt-Details:
| Vorderansicht Außenmaße (B/L) ca. 15,12 m x 12,21 m |
|
| Rückansicht | |
| Seitenansicht 1 | |
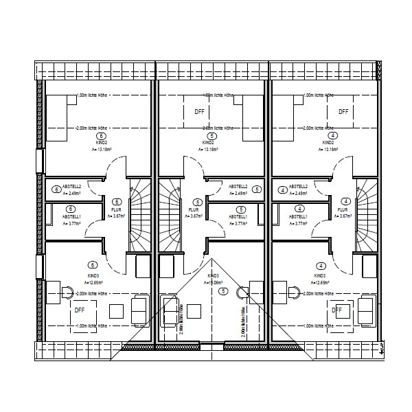
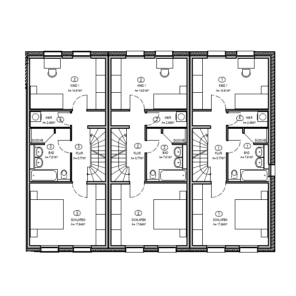
Grundrisse (Individuelle Anpassung natürlich noch möglich):
| Erdgeschoss | |
| Obergeschoss | |
| Dachgeschoss (ausgebaut) |
|
| Spitzboden | |
| Keller (ohne) |
Pläne ohne Maßstab - Maßangaben und Nutzungsbeispiele ohne Gewähr
Mobiliar und Sonderausstattung sind nicht im Preis enthalten (c) die hypotheker.
...
| Vorderansicht Außenmaße (B/L) ca. 15,12 m x 12,21 m |
|
| Rückansicht | |
| Seitenansicht 1 | |
Grundrisse (Individuelle Anpassung natürlich möglich):
| Erdgeschoss | |
| Obergeschoss | |
| Dachgeschoss (ausgebaut) |
|
| Keller (ohne) |
Pläne ohne Maßstab - Maßangaben und Nutzungsbeispiele ohne Gewähr
Mobiliar und Sonderausstattung sind nicht im Preis enthalten (c) die hypotheker.
Beschreibung....
Die Häuser entstehen in direkter Orts-Kernlage von Schöneck-Kilianstädten. Kilianstädten ist der Haupt-Ortsteil der Gemeinde Schöneck und verfügt über eine perfekte Infra-Struktur und Anbindung an Frankfurt/Hanau und Bad Vilbel.
So erreichen Sie die Innenstadt von Hanau z.B. in 20 min., Frankfurt in ca. 30 min. und Bad Vilbel in ca. 15 min. - zentraler kann man nicht wohnen!
Im näheren Umfeld finden Sie außerdem diverse alltägliche Einkaufsmöglichkeiten, einen Kinderspielplatz, einen Kindergarten, eine Grundschule und einen Bahnanschluss.
Weitere Infos zur Gemeinde Schöneck und dem Ortsteil Kilianstädten finden Sie unter www.schoeneck.de


























