Willkommen im Wohnpark Schöneck
| Projekt-ID/Nr.: | HU-2173 |
| Projekt / Anzahl Einheiten |
8 moderne Doppelhaushälften |
| Grundstückslage | Nördliche Hauptstraße 29 |
| 61137 Schöneck (OT Büdesheim) | |
| Baubeginn | Sommer 2019 |
| Grundstücksgrößen | von 155 bis 227 m² |
| Wohn-/Nutzflächen | bis 176 m² Wohn-/Nutzfläche |
| Kaufpreise |
ab 379.500 EURzzgl. Nebenkosten lt. Exposé |
Ab Sommer 2019 entstehen in Schöneck-Büdesheim 8 moderne Doppelhaushälften. Die Häuser werden Ihnen schlüsselfertig zur Eigennutzung übergeben oder können bei Kauf zu Kapitalanlagezwecken gut vermietet werden. Der Verkauf der Häuser erfolgt schlüsselfertig gemäß Baubeschreibung & Preisliste. Der genaue Energiebedarf der Häuser ergibt sich aus der Wärmeschutzberechnung zum Bauantrag. Sichern Sie sich jetzt Ihr neues Eigenheim zu attraktiven Konditionen!
Sie möchten mehr erfahren?
Jetzt hier nähere Infos anfordern!
---------------------------------------------------------------------------------------------------------------------------------------
Weitere Projekt-Details:
Die Häuser entstehen in einem kleinen in sich geschlossenen Wohnpark am Ortsausgang von Schöneck-Büdesheim. Die Zuwegung erfolgt über eine private Anliegerstraße.
Büdesheim ist ein gemütlicher Ortsteil von Schöneck und verfügt über eine perfekte Infrastruktur und eine gute Verkehrsanbindung. Im Ort bzw. näheren Umfeld finden Sie alltägliche Einkaufsmöglichkeiten, Ärzte, einen Kinderspielplatz, einen Kindergarten, eine Grundschule und einen Bahnanschluss. Weitere Infos zur Gemeinde Schöneck und dem Ortsteil Büdesheim finden Sie unter www.schoeneck.de
Gebäudgrundmaß Breite 6,16 m / Tiefe 10,54 m
| Vorderansicht | |
| Gartenansicht | |
| Ansicht Giebel rechts | |
| Ansicht Giebel links | |
|
Grundriss |
|
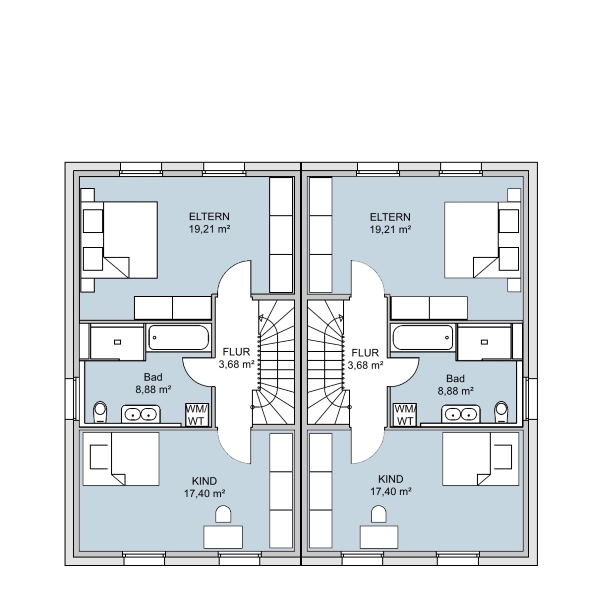
| Grundriss Obergeschoss Eltern ca. 19,21 m² Kind ca. 17,40 m² Flur ca. 3,68 m² Bad ca. 8,88 m² |
|
|
Grundriss
|
|
|
Grundriss
Spitzboden
Spitzboden ca. 24,65 m²
|
|
| Gebäudeschnitt |
Päne ohne Maßstab - Maßangaben und Nutzungsbeispiele ohne Gewähr
Mobiliar und Sonderausstattung sind nicht im Preis enthalten (c) die hypotheker.



